Property Type
Townhome, Row / Townhouse
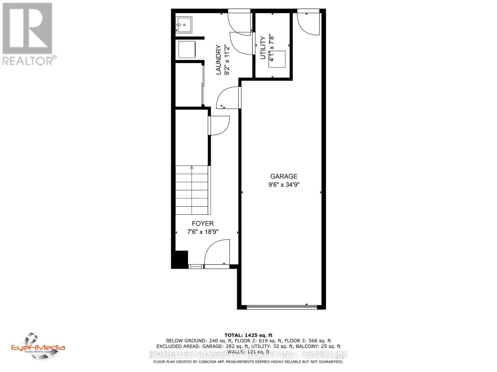
Parking
Garage: Yes, 2 parking
MLS #
X12479280
Size
1500 - 2000 sqft
Basement
None
Listed on
-
Lot size
-
Tax
-
Days on Market
-
Year Built
-
Maintenance Fee
-
