26
$415,000 Sale
Listed 19 hours ago
673 BRANT WATERLOO Road Unit# 518, #518
· 2
· 1.0
· 2
· 792
Key Facts
Key facts for 673 BRANT WATERLOO Road Unit# 518, #518
Property Type
House, Mobile Home
Parking
Garage: No, 2 parking
MLS #
40774994
Size
792 sqft
Basement
None
Listed on
-
Lot size
-
Tax
-
Days on Market
-
Year Built
1984
Maintenance Fee
-
Description
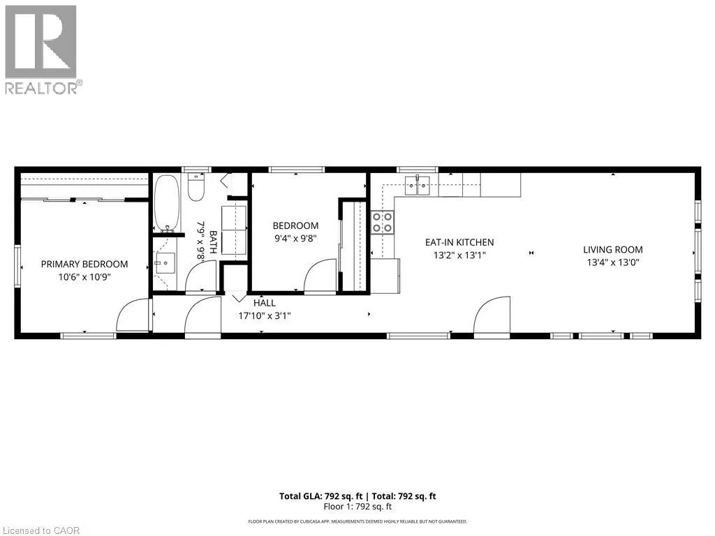
Welcome to Unit #518, a beautifully updated Northlander model offering the rare privilege of year-round living in the family-owned and operated Hillside Lake Park. Over the past few years, this home has undergone extensive renovations and presents a fresh, move-in-ready space to call your own. Step ...inside to find new vinyl plank flooring, fresh paint, upgraded lighting, and custom zebra blinds throughout. The stylish eat-in kitchen features upgraded cabinetry, stainless steel appliances, and a rough-in for a dishwasher. A spacious living room with two large windows fills the home with natural light, while the primary bedroom offers comfortable proportions right beside the 4-piece bathroom with in-suite laundry. A second bedroom or flex room makes the perfect spot for an office, craft space, or guest room. Outdoors, you’ll love spending time on the massive 40' x 12' covered deck, complete with a 10' x 12' screened-in room—perfect for morning coffee or evening gatherings. The exterior of this home is surrounded by mature trees and features a fire pit, deck with gazebo, and two sheds for extra storage. Included in the sale are tons of extras such as outdoor furniture, fire table, shelving, storage boxes, firewood, and more! Very rarely do these year-round units come up for sale, especially ones with these upgrades, so DO NOT miss your chance! Book your showing today! [Monthly rent: $540.04 (additional fees apply)] (id:10452)
Similar Properties (No results)
Room Types
4pc Bathroom
-
Measurements not available
0 sqft
Bedroom
-
Dimensions 9'8'' x 9'4''
90.22 sqft
Eat in kitchen
-
Dimensions 13'1'' x 13'2''
172.26 sqft
Listing courtesy of: RE/MAX TWIN CITY REALTY INC. BROKERAGE-2
This REALTOR.ca listing content is owned and licensed by REALTOR® members of The Canadian Real Estate Association.